「(仮称)アリオ武蔵小杉」のフロア構成が判明、店舗面積37,000㎡のうち1階・4階に飲食・サービス2,688㎡を配置
東京機械製作所玉川製造所跡地に建設が進められている「(仮称)アリオ武蔵小杉」のフロア構成が判明しました。
延床面積106,400㎡のうち店舗面積が37,000㎡、店舗面積のうち2,668㎡が飲食・サービスの非物販店舗となります。
※フロア図はクリックで拡大します。
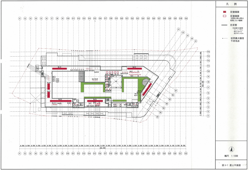
■屋上フロア図(屋上緑化)
■地上4階フロア図(物販店舗、青地が飲食・サービス)
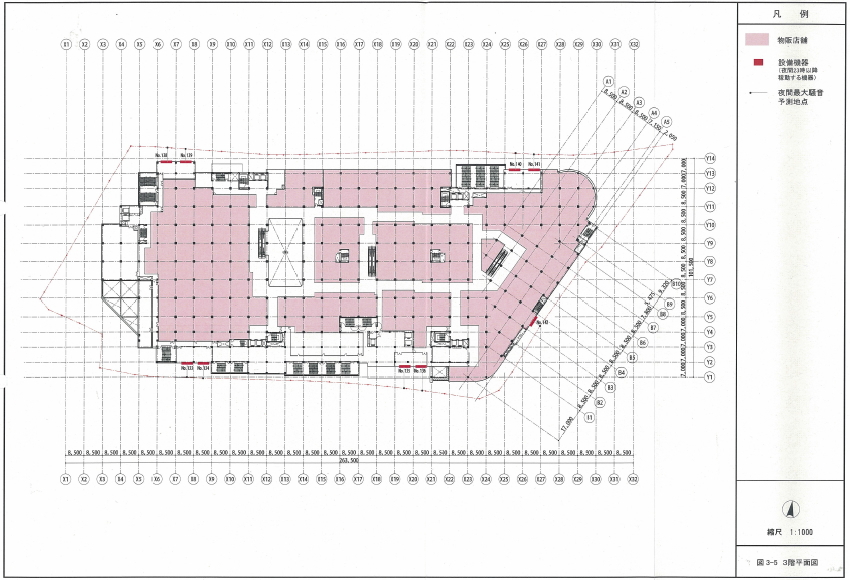
■地上3階フロア図(物販店舗)
■地上2階フロア図(物販店舗)
■地上1階フロア図(物販店舗、青地が飲食・サービス)
■地下1階フロア図(駐車場・駐輪場)
■地下2階フロア図(駐車場)
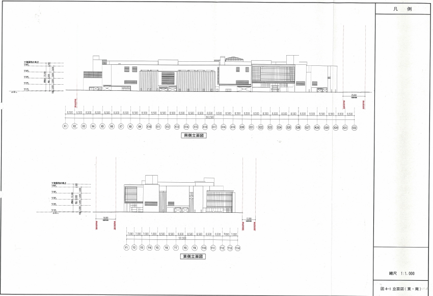
■東側・南側立面図
■西側・北側立面図
■「(仮称)アリオ武蔵小杉」のフロア構成
・屋上 屋上緑化
・地上4階 店舗面積8,625㎡、飲食・サービス1,673㎡
・地上3階 店舗面積10,620㎡
・地上2階 店舗面積10,150㎡
・地上1階 店舗面積7,605㎡、飲食・サービス995㎡、駐輪場246台、公共駐輪場300台
・地下1階 駐車場350台、駐輪場1,454台
・地下2階 駐車場470台
「(仮称)アリオ武蔵小杉」はかねてからお伝えしている通り、地下2階・地上4階建ての商業施設です。地下フロアには駐車場・駐輪場が整備され、地上4フロアに店舗が入ります。
2年近く前、2011/8/11エントリにおいて一部平面図をご紹介していましたが、その際には店舗の配置など構成は全く分からないものでした。
今回ご紹介する図面では、細かな店舗の区画は示されていないものの、ある程度フロアの構成がわかるものになっています。
▼1階・4階に飲食・サービス
まずは今回、1階および4階に非物販店舗(飲食・サービス)が合計2,668㎡入ることがわかりました。
フロア図で参照すると、1階・4階に青く塗り分けられているところが、その飲食・サービスの店舗が入る区画になります。
これは一般的なセオリーで考えると1階がフードコート、4階がレストラン街ということになるのではないでしょうか。
それぞれの区画は北側に面しており、レストラン街(仮)の視界が高層マンションとかぶってしまうことが心配されましたが、4階図面で見ると、レストラン街(仮)の窓は丁度パークシティ武蔵小杉ザ・グランドウイングタワーとミッドスカイタワーの間にうまく逃がしてあるのがわかります。
▼東急線側の大区画がキーテナントのイトーヨーカドーか
また各フロアを見ると、東急線側(図面左側)の1階~4階に、ほぼ同じ大きさの大区画が配置されていることがわかります。
これまでの「アリオ」各店舗の配置や、図面上の荷捌き施設の位置などからすると、これがキーテナントのイトーヨーカドーが入るスペースではないでしょうか。 だとすれば、全体の3割程度がイトーヨーカドー、7割程度がその他専門店と飲食街ということになります。
■(ご参考)アリオ西新井 フロアマップ
http://www.ario-nishiarai.jp/web/floor/index_1.html
他の「アリオ」でも、いずれも各フロアを縦にぶち抜く形でイトーヨーカドーが入居しています。
個人的には可能性が高いと思いますが、これは本サイトとして確認しているわけではなく、あくまでも推測であることを申し上げておきます。
▼1階~3階、4階レストラン街上部に吹き抜け
2年前にご紹介した図面では、最近の商業施設の定番になっている「吹き抜け」の配置が確認できませんでした。
しかし今回の図面を参照すると、1階~3階のエスカレーター脇、また4階レストラン街(仮)上部に吹き抜け(屋上採光部)があることがわかります。
大規模な建物の中の閉塞感を解消するには、このような構造があったほうが良いと思います。
※ ※ ※
さて、「(仮称)アリオ武蔵小杉」は2014年秋のオープンを予定しています。
気が付けばもうあと1年3か月程度のところまできていまして、いよいよ具体的な形が見えてきました。
今後は現地で建物躯体の姿も立ち上がってくるでしょうし、部分的にテナントの情報なども出てくることがあるかもしれませんね。
■「(仮称)アリオ武蔵小杉」建設予定地

【関連リンク】
武蔵小杉ライフ:再開発情報:東京機械製作所地区(大規模工場跡地地区)
2011/7/15エントリ 東京機械製作所玉川製造所再開発地区内のビルが閉鎖
2010/7/22エントリ 東京機械製作所跡地に11万㎡商業施設と57階タワーマンションを建設、2015年度完成へ
2010/7/23エントリ 追補:東京機械製作所跡地商業施設は2014年度完成、2015年度に全体完成
2010/8/2エントリ 東京機械製作所跡地再開発・大型複合商業施設と高層マンションの詳細情報
2010/9/2エントリ 東京機械製作所玉川製造所再開発に係る条例環境影響評価方法書説明会
2010/10/24エントリ 東京機械製作所が玉川製造所第二工場用地を住友不動産に売却を決議、2011年3月23日引渡しへ
2011/8/17エントリ 東京機械製作所玉川製造所再開発の事業計画が公示
2011/8/19エントリ 東京機械製作所玉川製造所跡地再開発の平面図と立面図
2011/8/22エントリ 東京機械製作所跡地の大型複合商業施設がイトーヨーカドーに決定、アリオ形態の複合SCに
2011/8/24エントリ 東京機械製作所の「アリオ武蔵小杉」はシネコン誘致断念、イトーヨーカドーは2店舗併存へ
2011/8/28エントリ 東京機械製作所玉川製造所跡地「アリオ武蔵小杉」のイメージパース
2011/12/3エントリ アリオ武蔵小杉の建設と、パークシティ武蔵小杉の用途地域変更
2012/1/25エントリ アリオ武蔵小杉建設に伴う、パークシティ武蔵小杉の用途地域変更に関する川崎市の見解
2012/3/28エントリ アリオ武蔵小杉建設に伴うパークシティ武蔵小杉の用途地域変更を決定/代替措置としての建築協定を締結
2012/4/25エントリ 東京機械製作所玉川製造所の解体工事開始
2012/7/31エントリ パークシティ武蔵小杉ミッドスカイタワーから見た、東京機械製作所玉川製造所解体工事
2012/9/3エントリ レジデンス・ザ・武蔵小杉から見た、東京機械製作所玉川製造所解体工事
2013/1/7エントリ 住友不動産が東京機械製作所跡地「シティタワー武蔵小杉」を発表
2013/4/3エントリ 東京機械製作所玉川製造所跡地の再開発工事と、工事車両向けの注意書き
2013/4/24エントリ レジデンス・ザ・武蔵小杉から見た、「(仮称)アリオ武蔵小杉」「シティタワー武蔵小杉」建設工事
2013/4/30エントリ 東京機械製作所が「(仮称)アリオ武蔵小杉」用地をイトーヨーカドーに178億円で売却