武蔵小杉駅南口地区東街区商業施設のフロア構成が判明:物販店舗73区画、クリニック・飲食6区画を配置
武蔵小杉駅南口地区東街区(東急武蔵小杉駅東側隣接)に建設中の商業施設のフロア構成が明らかになりました。
店舗面積は物販店舗が73区画・6,217㎡、非物販店舗が6区画(飲食店舗が403㎡、サービス店舗等が1,421㎡)で構成されることになります。
本商業施設は「武蔵小杉東急スクエア」などと一体的な「KOSUGI CORE TOWN」の一角として、2014年3月頃のオープンを予定しています。
※フロア図はクリックで拡大します。
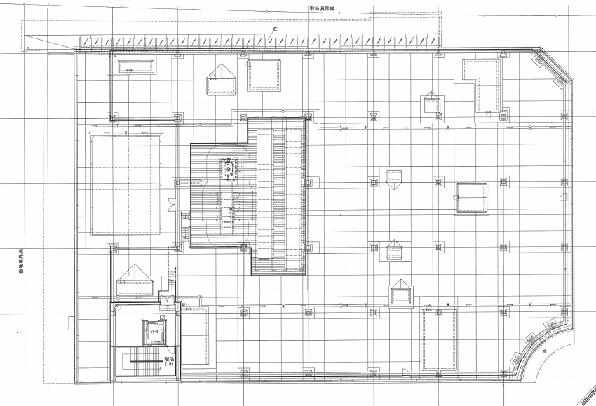
■東街区商業施設屋上フロア図
まずこちらは屋上で、アリオ武蔵小杉のような屋上緑化は明示されていません。
左下に階段とエレベーターが1基あります。
■東街区商業施設5階フロア図
5階には、非物販店舗が集められており、他のフロアはすべて物販店舗となっています。
非物販店舗は飲食店舗が403㎡、サービス店舗等が1,421㎡ですから、飲食店舗は1店舗程度(正方形の場合約20m×20m)ではないでしょうか。
その他のサービス店舗は、かねてから予定されていたメディカルモールと思われます。
となると、5階に1店舗だけある物販店舗(地色で塗られている区画)は、調剤薬局ということになるでしょう。
またこのフロアは武蔵小杉東急スクエアとペデストリアンデッキで接続されています。
商業施設としては、レストランフロアは武蔵小杉東急スクエアに譲る形ですね。
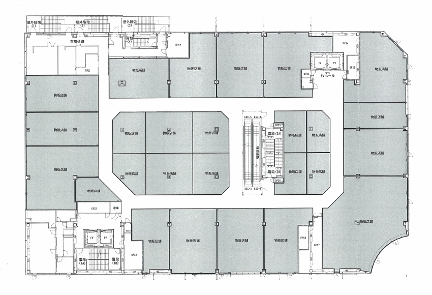
■東街区商業施設4階フロア図
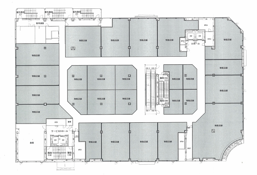
■東街区商業施設3階フロア図
4階、3階はほぼ同じような構成のフロアで、それぞれ物販店舗が26区画ずつ配置されています。
フーディアムと向かい合う右下の区画が一番大きいですね。
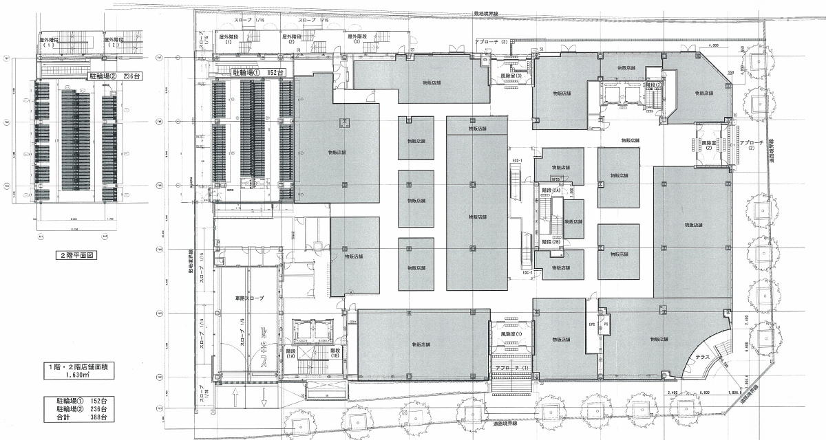
■東街区商業施設1・2階フロア図
東街区商業施設は形式上グラウンドレベルの1フロアが1・2階という扱いになっています。店舗は1フロアなのですが、左上の駐輪場が2フロアあるためです。
そのため、店舗フロアの天井高が高いのかもしれませんね。
ここには物販店舗が20区画配置されています。
右下角地の物販店舗は、円形上のガラス面の外側がテラスになっています。
駐輪場は1階に152台、2階に236台、合計388台分用意されています。
■東街区商業施設地下1階フロア図
最後に、こちらは地下1階です。
駐車場60台、自動二輪駐車場6台分が用意されています。
■武蔵小杉駅南口地区東街区商業施設のフロア構成
▼屋上階
▼5階 物販店舗101㎡(1区画)、飲食店舗403㎡、サービス店舗等1,421㎡(合計6区画)
▼4階 物販店舗2,270㎡(26区画)
▼3階 物販店舗2,216㎡(26区画)
▼1・2階 物販店舗1,630㎡(20区画)、駐輪場388台
▼地下1階 駐車場60台、自動二輪駐車場6台
▼地下2階
フロア構成をまとめると、上記のようになります。
前述の通り、飲食店舗は武蔵小杉東急スクエアに任せて、物販とメディカルモールに集中した形になります。
全体で79区画ありますので、既存店舗も含めて98店舗でオープンした武蔵小杉東急スクエアに近い規模かと思います。
業種としては衣料、生活雑貨、日用品、食品などが予定されているそうですので、具体的なテナント名が注目されるところです。
■東街区商業施設の前面円形部

【関連リンク】
武蔵小杉ライフ:再開発情報:小杉駅南部地区C地区
2011/4/15エントリ 武蔵小杉駅南口地区東街区の施工スケジュール・駐輪場移転・道路切替
2011/4/25エントリ 武蔵小杉駅南口地区東街区の道路切り替え、東急武蔵小杉駅東口閉鎖
2011/5/24エントリ 武蔵小杉駅南口地区東街区の工事説明会
2011/6/17エントリ 東急武蔵小杉駅前に響く、カエルの鳴き声
2011/6/23エントリ 武蔵小杉駅南口地区東街区の駐輪場が2011年8月19日に再移転
2011/7/28エントリ 武蔵小杉駅南口地区東街区公共地下駐輪場の工事説明会
2011/8/2エントリ 武蔵小杉駅南口地区東街区の駐輪場が再移転、地下駐輪場着工
2011/11/7エントリ 武蔵小杉駅南口地区東街区の仮設駐輪場
2012/1/12エントリ 武蔵小杉駅南口地区東街区の地下駐輪場とモデルルームとグランドウイングタワー建設工事
2012/3/6エントリ パークシティ武蔵小杉ザ・グランドウイングタワーのイメージパースと、商業施設コンセプト
2012/3/17エントリ パークシティ武蔵小杉ザ・グランドウイングタワーの工事現場で、吊るされた重機
2012/4/30エントリ パークシティ武蔵小杉ザ・グランドウイングタワーの躯体と地下駐輪場
2012/6/1エントリ 武蔵小杉駅南口地区東街区の道路工事による、片側歩道の夜間通行止め
2012/7/13エントリ 武蔵小杉駅南口地区東街区の地下駐輪場の出入口
2012/7/18エントリ 武蔵小杉駅南口地区東街区の地下駐輪場を2012年11月1日一部供用開始、東西街区の駐輪場2か所閉鎖へ
2012/7/23エントリ パークシティ武蔵小杉ザ・グランドウイングタワーの外壁
2012/8/3エントリ パークシティ武蔵小杉ザ・グランドウイングタワーのPC工法
2012/10/29エントリ 東急武蔵小杉駅ロータリー地下駐輪場が、11月1日一部供用開始前の見学会を実施
2012/11/1エントリ 武蔵小杉駅周辺自転車等駐車場第5施設が本日一部供用開始、地下に流れる「川崎おどり」
2013/5/29エントリ 武蔵小杉駅南口地区東街区の暫定バイク駐車場が2013年6月1日より旧中原図書館に移転
2013/6/3エントリ 旧中原図書館敷地内にバイク駐車場「武蔵小杉駅自転車等駐車場第6施設」がオープン
2013/6/14エントリ パークシティ武蔵小杉ザ・グランドウイングタワーのタワークレーン解体と、車両通行止め
2013/6/22エントリ 武蔵小杉駅南口地区東街区が電気供給工事により南側道路の夜間通行止めを実施
2013/7/10エントリ 武蔵小杉駅南口地区東街区商業施設の壁面がお目見え