三井不動産が東街区商業施設への「三井のすまいモール武蔵小杉」出店を発表、オープンは2014年4月中旬に
三井不動産が、本日付のニュースリリースで「三井のすまいモール武蔵小杉」を2014年4月中旬に東街区商業施設4階にオープンすることを発表しました。
■三井不動産ニュースリリース 三井不動産グループの住宅事業の進化に向けた新ソリューションが好調に推移 すまいとくらしのワンストップ拠点「三井のすまいモール」3号店、2014年4月武蔵小杉にオープン 三井不動産グループメンバーシップサービス「三井のすまいLOOP」会員数が10万人突破
http://www.mitsuifudosan.co.jp/corporate/news/2013/0902_02/index.html
非常に長いタイトルのですが、詳細は上記リリースに記載されています。本エントリでは、リリース中から東街区商業施設に関する要点のみをピックアップします。
「三井のすまいモール」とは、三井不動産グループの住宅関係会社の営業拠点をモール状に集め、それをまとめる「総合デスク」を設置して来場者のさまざまな相談に応えるものです。
2012年に目黒・横浜にオープンしており、武蔵小杉が3号店となります。
なお、この出店については2012年の段階でメディアで報道されていまして、本ブログでも触れておりました。
■「三井のすまいモール横浜」
武蔵小杉東急スクエアにある「東急電鉄 住まいと暮らしのコンシェルジュ」に似ていますが、東急電鉄が自社グループ以外の幅広い企業への紹介を行うのに対し、三井不動産は自社グループ陣営で固める体制になっています。
■「三井のすまいモール武蔵小杉」概要
▼出店会社:三井不動産レジデンシャル、三井不動産リアルティ、三井ホーム、三井不動産リフォーム
▼ 店舗面積:約125坪
▼店舗構成:三井のすまいモール総合デスク/グループ各社の営業店舗/すまいとくらしの体感コーナー
▼オープン:2014年4月中旬予定
■武蔵小杉駅前商業施設概要(※東街区商業施設)
▼名称:(仮称)武蔵小杉C地区計画商業施設
▼店舗数:約70店舗
▼延床面積 :約13,900m2(約4,200坪)
▼構造・規模 :S造・RC造、地上4階建
▼開業予定 :2014年4月中旬
まず今回のリリースで注目したのはオープン日で、東街区商業施設、「三井のすまいモール武蔵小杉」ともにオープン日が2014年4月中旬となっていることです。
この段階でのリリースですので、ほぼ東街区商業施設のオープン時期が決まった、と考えても良いでしょう。
また、東街区商業施設の店舗数が約70店舗とされています。
以前のエントリでもお伝えしたように、東街区商業施設の店舗区画は74区画となっていますので、ほぼ区画数=店舗数ということになりますね。
そして、「三井のすまいモール武蔵小杉」は、東街区商業施設の4階にオープンすることが明記されています。
4階はメディカルモールの入る非物販フロアになっていますが、その一角に入居する形です。
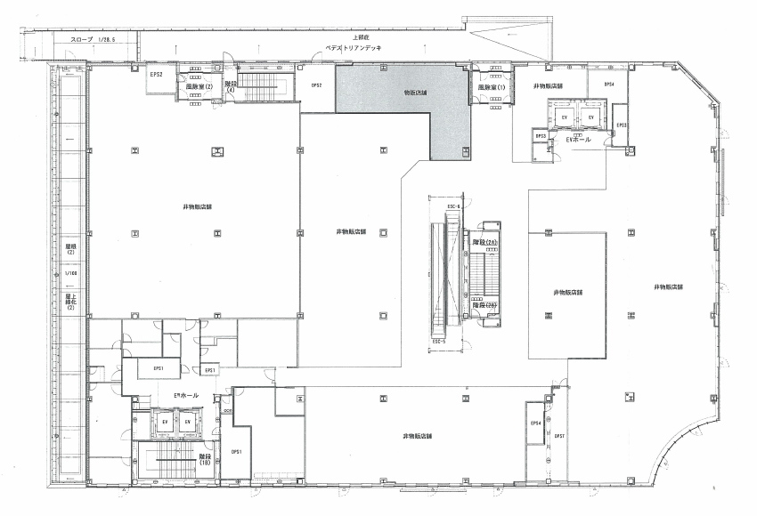
■東街区商業施設5階(実質4階)フロア図(※クリックで拡大します)
「三井のすまいモール」が入居する東街区商業施設の4階フロア図は、上記の通りになっています。125坪=約413㎡ですが、どの区画になるのか、これだけですと判断しにくいですね。
なお、東街区商業施設のサービス店舗は1,421㎡ですから、3分の1以上は「三井のすまいモール」が占めることになります。となると、残りの1,000㎡あまりがメディカルモールという計算になります。
■工事中の東街区商業施設

現在、東街区では高層住宅棟の「パークシティ武蔵小杉ザ・グランドウイングタワー」が外観上は完成に近づき、低層部および内部工事に入っています。
東街区商業施設はまだ鉄骨等も露出している状態で、これから2014年4月に向けて半年間で仕上げていくことになります。
【関連リンク】
武蔵小杉ライフ:再開発情報:小杉駅南部地区C地区
2012/1/12エントリ 武蔵小杉駅南口地区東街区の地下駐輪場とモデルルームとグランドウイングタワー建設工事
2012/3/6エントリ パークシティ武蔵小杉ザ・グランドウイングタワーのイメージパースと、商業施設コンセプト
2012/3/17エントリ パークシティ武蔵小杉ザ・グランドウイングタワーの工事現場で、吊るされた重機
2012/4/30エントリ パークシティ武蔵小杉ザ・グランドウイングタワーの躯体と地下駐輪場
2012/6/1エントリ 武蔵小杉駅南口地区東街区の道路工事による、片側歩道の夜間通行止め
2012/7/13エントリ 武蔵小杉駅南口地区東街区の地下駐輪場の出入口
2012/7/18エントリ 武蔵小杉駅南口地区東街区の地下駐輪場を2012年11月1日一部供用開始、東西街区の駐輪場2か所閉鎖へ
2012/7/23エントリ パークシティ武蔵小杉ザ・グランドウイングタワーの外壁
2012/8/3エントリ パークシティ武蔵小杉ザ・グランドウイングタワーのPC工法
2012/10/29エントリ 東急武蔵小杉駅ロータリー地下駐輪場が、11月1日一部供用開始前の見学会を実施
2012/11/1エントリ 武蔵小杉駅周辺自転車等駐車場第5施設が本日一部供用開始、地下に流れる「川崎おどり」
2013/5/29エントリ 武蔵小杉駅南口地区東街区の暫定バイク駐車場が2013年6月1日より旧中原図書館に移転
2013/6/3エントリ 旧中原図書館敷地内にバイク駐車場「武蔵小杉駅自転車等駐車場第6施設」がオープン
2013/6/14エントリ パークシティ武蔵小杉ザ・グランドウイングタワーのタワークレーン解体と、車両通行止め
2013/6/22エントリ 武蔵小杉駅南口地区東街区が電気供給工事により南側道路の夜間通行止めを実施
2013/7/10エントリ 武蔵小杉駅南口地区東街区商業施設の壁面がお目見え
2013/7/17エントリ 武蔵小杉駅南口地区東街区商業施設のフロア構成が判明:物販店舗73区画、クリニック・飲食6区画を配置