「(仮称)アリオ武蔵小杉」の最新イメージパース公表
東京機械製作所跡地の「(仮称)アリオ武蔵小杉」の最新イメージパースが公表され、現地2箇所にも掲示されました。
綱島街道沿いの中原消防署前交差点、リエトコート前交差点からそれぞれ建物の姿を描いたものです。
2013/7/9エントリでご紹介したフロア図に続き、具体的な商業施設の姿が見えてきました。
※イメージパースはクリックで拡大します。
2013/7/9エントリでご紹介したフロア図に続き、具体的な商業施設の姿が見えてきました。
※イメージパースはクリックで拡大します。
■中原消防署前交差点からの「(仮称)アリオ武蔵小杉」イメージパース
まずこちらは、中原消防署前交差点からのアングルで描かれた「(仮称)アリオ武蔵小杉」のイメージパースです。
交差点に面して円筒状のガラス張り部分があり、建物内からの開放感を演出するようになっています。この形状は、早い段階から図面上では明示されていました。
イメージパースの右手奥に、パークシティ武蔵小杉ミッドスカイタワーが建ち、左手奥にシティタワー武蔵小杉が新たに建つ位置関係になります。
■リエトコート前交差点からの「(仮称)アリオ武蔵小杉」イメージパース
そして2枚目のこちらが、リエトコート武蔵小杉前の交差点付近から見たイメージパースです。正確には交差点よりも新駅ロータリー寄りで、右手前の敷地は「ジーンズメイト」「藍屋」などが入る商業施設があります。
「(仮称)アリオ武蔵小杉」の建物右手には、綱島街道からの駐車場の出入口が青・赤のカラーリングで設置されています。交差点の角地には、またガラス張りの部分がありますね。
2013/7/9エントリでご紹介した立面図、フロア図も再掲しておきますので、あわせてご参照ください。(※こちらもクリックで拡大します。)
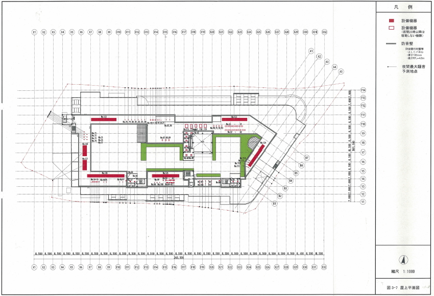
■屋上フロア図(屋上緑化)

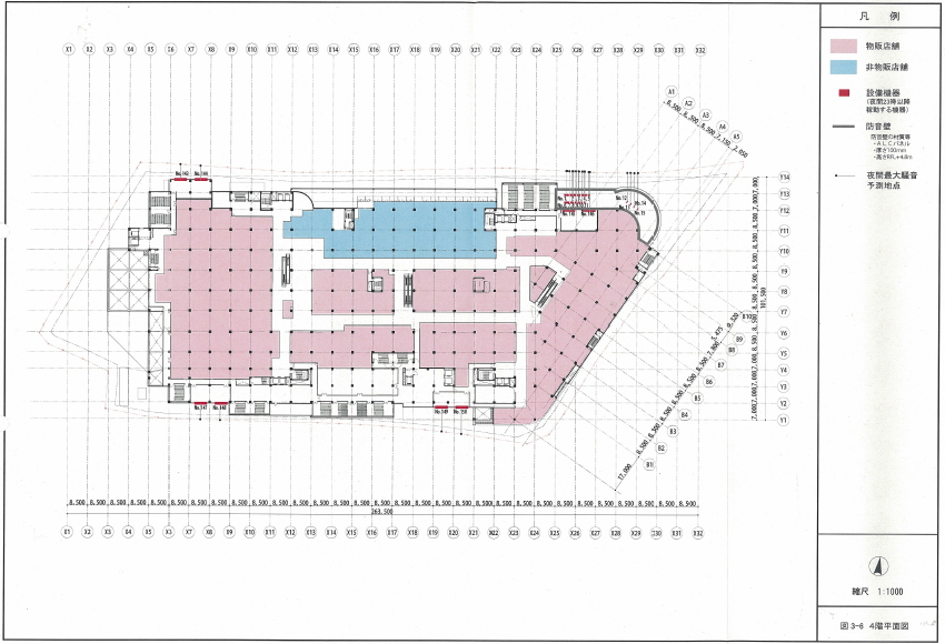
■地上4階フロア図(物販店舗、青地が飲食・サービス)

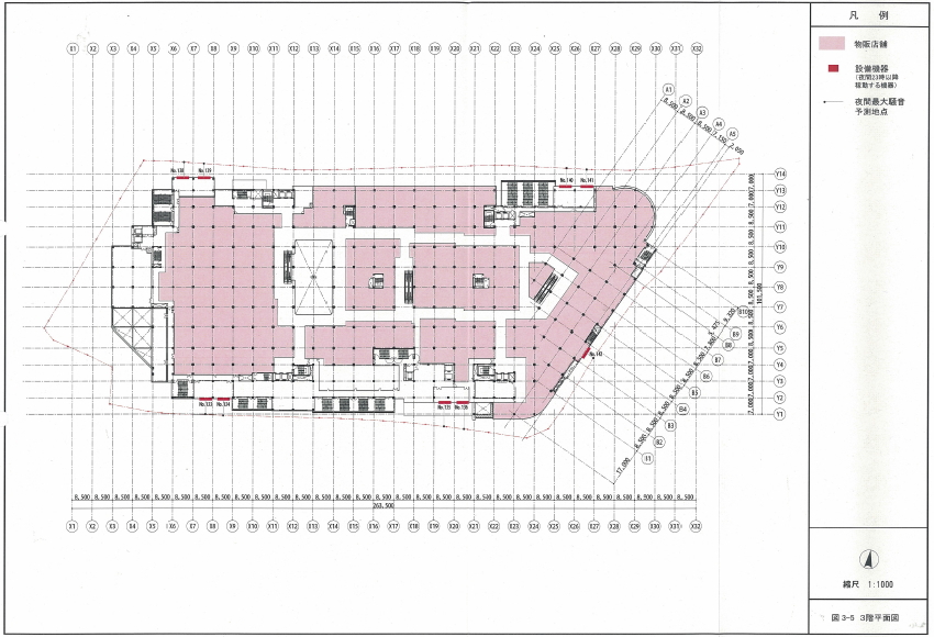
■地上3階フロア図(物販店舗)

■地上2階フロア図(物販店舗)

■地上1階フロア図(物販店舗、青地が飲食・サービス)

■地下1階フロア図(駐車場・駐輪場)

■地下2階フロア図(駐車場)

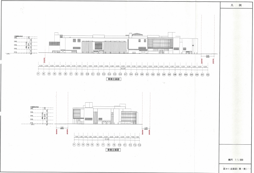
■東側・南側立面図

■西側・北側立面図

■現地でのイメージパースの設置(リエトコート前交差点)
2013/7/9エントリでご紹介した立面図、フロア図も再掲しておきますので、あわせてご参照ください。(※こちらもクリックで拡大します。)
■屋上フロア図(屋上緑化)
■地上4階フロア図(物販店舗、青地が飲食・サービス)
■地上3階フロア図(物販店舗)
■地上2階フロア図(物販店舗)
■地上1階フロア図(物販店舗、青地が飲食・サービス)
■地下1階フロア図(駐車場・駐輪場)
■地下2階フロア図(駐車場)
■東側・南側立面図
■西側・北側立面図
■現地でのイメージパースの設置(リエトコート前交差点)
これまでに作成されていたイメージパースはダミーであったり、実際の仕上がりとは必ずしも一致しないものだったと思います。今回公表されたイメージパースは、2013/7/9エントリでご紹介した図面に基づいた、より正確なものでしょう。
細かい意匠の変更等はあると思いますが、「(仮称)アリオ武蔵小杉」の仕上がりは概ねこのイメージパースで想像しておいて良いと思います。
フロア図とイメージパースも出てきまして、いよいよ具体的にオープンの姿が想像できるようになってきましたね。
■建設工事中の「(仮称)アリオ武蔵小杉」

【関連リンク】
武蔵小杉ライフ:再開発情報:東京機械製作所地区(大規模工場跡地地区)
2011/7/15エントリ 東京機械製作所玉川製造所再開発地区内のビルが閉鎖
2010/7/22エントリ 東京機械製作所跡地に11万㎡商業施設と57階タワーマンションを建設、2015年度完成へ
2010/7/23エントリ 追補:東京機械製作所跡地商業施設は2014年度完成、2015年度に全体完成
2010/8/2エントリ 東京機械製作所跡地再開発・大型複合商業施設と高層マンションの詳細情報
2010/9/2エントリ 東京機械製作所玉川製造所再開発に係る条例環境影響評価方法書説明会
2010/10/24エントリ 東京機械製作所が玉川製造所第二工場用地を住友不動産に売却を決議、2011年3月23日引渡しへ
2011/8/17エントリ 東京機械製作所玉川製造所再開発の事業計画が公示
2011/8/19エントリ 東京機械製作所玉川製造所跡地再開発の平面図と立面図
2011/8/22エントリ 東京機械製作所跡地の大型複合商業施設がイトーヨーカドーに決定、アリオ形態の複合SCに
2011/8/24エントリ 東京機械製作所の「アリオ武蔵小杉」はシネコン誘致断念、イトーヨーカドーは2店舗併存へ
2011/8/28エントリ 東京機械製作所玉川製造所跡地「アリオ武蔵小杉」のイメージパース
2011/12/3エントリ アリオ武蔵小杉の建設と、パークシティ武蔵小杉の用途地域変更
2012/1/25エントリ アリオ武蔵小杉建設に伴う、パークシティ武蔵小杉の用途地域変更に関する川崎市の見解
2012/3/28エントリ アリオ武蔵小杉建設に伴うパークシティ武蔵小杉の用途地域変更を決定/代替措置としての建築協定を締結
2012/4/25エントリ 東京機械製作所玉川製造所の解体工事開始
2012/7/31エントリ パークシティ武蔵小杉ミッドスカイタワーから見た、東京機械製作所玉川製造所解体工事
2012/9/3エントリ レジデンス・ザ・武蔵小杉から見た、東京機械製作所玉川製造所解体工事
2013/1/7エントリ 住友不動産が東京機械製作所跡地「シティタワー武蔵小杉」を発表
2013/4/3エントリ 東京機械製作所玉川製造所跡地の再開発工事と、工事車両向けの注意書き
2013/4/24エントリ レジデンス・ザ・武蔵小杉から見た、「(仮称)アリオ武蔵小杉」「シティタワー武蔵小杉」建設工事
2013/4/30エントリ 東京機械製作所が「(仮称)アリオ武蔵小杉」用地をイトーヨーカドーに178億円で売却
2013/7/9エントリ 「(仮称)アリオ武蔵小杉」のフロア構成が判明、店舗面積37,000㎡のうち1階・4階に飲食・サービス2,688㎡を配置

【関連リンク】
武蔵小杉ライフ:再開発情報:東京機械製作所地区(大規模工場跡地地区)
2011/7/15エントリ 東京機械製作所玉川製造所再開発地区内のビルが閉鎖
2010/7/22エントリ 東京機械製作所跡地に11万㎡商業施設と57階タワーマンションを建設、2015年度完成へ
2010/7/23エントリ 追補:東京機械製作所跡地商業施設は2014年度完成、2015年度に全体完成
2010/8/2エントリ 東京機械製作所跡地再開発・大型複合商業施設と高層マンションの詳細情報
2010/9/2エントリ 東京機械製作所玉川製造所再開発に係る条例環境影響評価方法書説明会
2010/10/24エントリ 東京機械製作所が玉川製造所第二工場用地を住友不動産に売却を決議、2011年3月23日引渡しへ
2011/8/17エントリ 東京機械製作所玉川製造所再開発の事業計画が公示
2011/8/19エントリ 東京機械製作所玉川製造所跡地再開発の平面図と立面図
2011/8/22エントリ 東京機械製作所跡地の大型複合商業施設がイトーヨーカドーに決定、アリオ形態の複合SCに
2011/8/24エントリ 東京機械製作所の「アリオ武蔵小杉」はシネコン誘致断念、イトーヨーカドーは2店舗併存へ
2011/8/28エントリ 東京機械製作所玉川製造所跡地「アリオ武蔵小杉」のイメージパース
2011/12/3エントリ アリオ武蔵小杉の建設と、パークシティ武蔵小杉の用途地域変更
2012/1/25エントリ アリオ武蔵小杉建設に伴う、パークシティ武蔵小杉の用途地域変更に関する川崎市の見解
2012/3/28エントリ アリオ武蔵小杉建設に伴うパークシティ武蔵小杉の用途地域変更を決定/代替措置としての建築協定を締結
2012/4/25エントリ 東京機械製作所玉川製造所の解体工事開始
2012/7/31エントリ パークシティ武蔵小杉ミッドスカイタワーから見た、東京機械製作所玉川製造所解体工事
2012/9/3エントリ レジデンス・ザ・武蔵小杉から見た、東京機械製作所玉川製造所解体工事
2013/1/7エントリ 住友不動産が東京機械製作所跡地「シティタワー武蔵小杉」を発表
2013/4/3エントリ 東京機械製作所玉川製造所跡地の再開発工事と、工事車両向けの注意書き
2013/4/24エントリ レジデンス・ザ・武蔵小杉から見た、「(仮称)アリオ武蔵小杉」「シティタワー武蔵小杉」建設工事
2013/4/30エントリ 東京機械製作所が「(仮称)アリオ武蔵小杉」用地をイトーヨーカドーに178億円で売却
2013/7/9エントリ 「(仮称)アリオ武蔵小杉」のフロア構成が判明、店舗面積37,000㎡のうち1階・4階に飲食・サービス2,688㎡を配置